An aperture card featuring the Bell Laboratories logo used from 1969-1983 in the centre. “REFER TO PROPRIETARY MARKING ON FIRST SHEET OF DRAWING” is printed inside a box on the left hand side of the card. The card has a number of fields to identify the drawing and sheet number, section number, size, issue, control location, distribution, “cl.” and an additional field for remarks.
The card is green in color with rounded corners and the top right corner is cut. The left margin of the card contains the text “MMM 11174”. The bottom margin contains the text “KS-21478 L-2 (10-80)” left aligned and “Printed in the U.S.A.” right aligned. Column numbers for all 80 columns are printed at the bottom of the card. The margin text and column numbers are printed on both sides of the card.
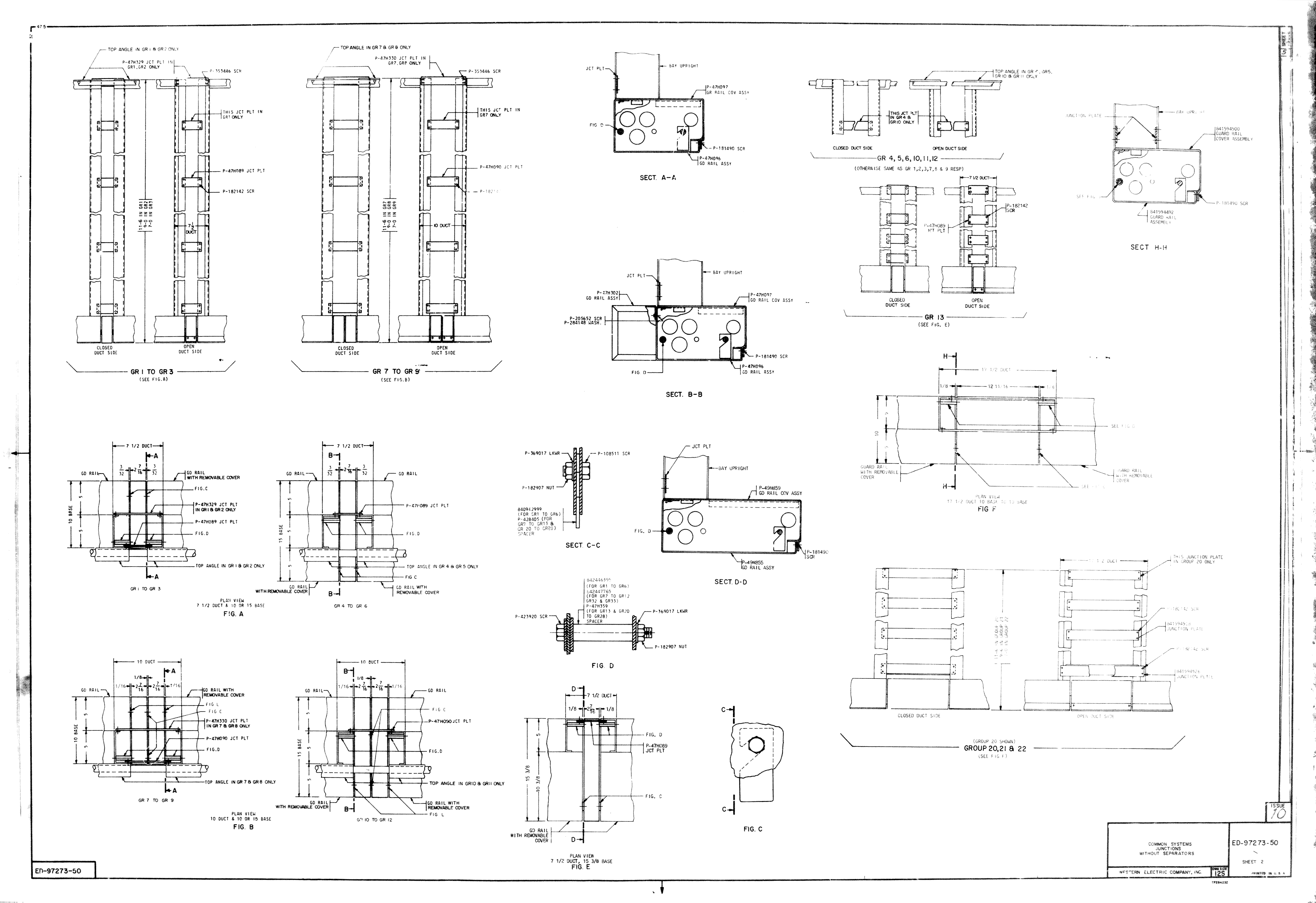
The first specimen card’s microfilm contains an engineering drawing of a Western Electric Equipment Frame with cable ducts. The drawing is shows detailed dimensions for three different sizes (9'0" [2743mm], 10'6" [3200mm] and [3500mm]) of single-bay equipment frames (9'0", 10'6" and 11'6") and sections of several parts of the frame structure. The drawing is labelled as “ED-97170-50”.
The card is printed with the following fields and the first specimen is punched with the following values:
| Field Description | Columns | Punched Value |
|---|---|---|
| Drawing and Sheet Number | 1-23 | ED 97273 50 2 |
| Sect. No. | 24-25 | |
| Size | 26-28 | 12S |
| Issue | 29-31 | 10 |
| [Unlabelled] | 32 | 7 |
| Contr. Loc. | 33-35 | MV4 |
| Distribution | 36-43 | 0924 |
| Cl. | 44 | |
| [Unlabelled] | 28-49 | 0057872 |
| [Unknown]* | 50-51 | 2,[11,3],11 |
| [Unknown]* | 52 | 11 |
| [Unknown]* | 78-80 | 0,3,8 |
* These fields were likely flags of some kind; possibly for the microfilm scanner/camera. The values are not known, and have been represented as comma separated list of punched rows.
Microfilm scans of this card are were captured with thanks to the facilities made available by the James Cook University Eddie Koiki Mabo Library.















